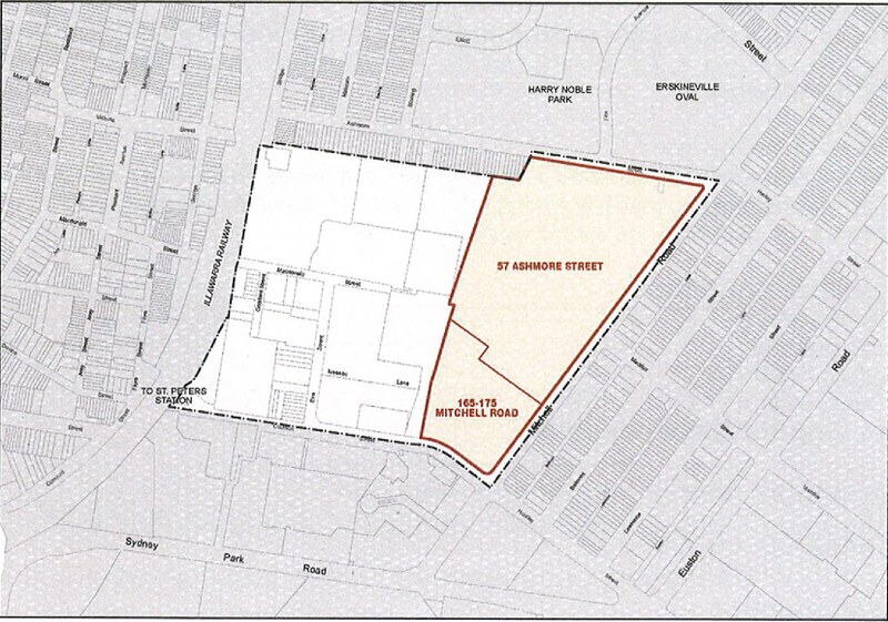
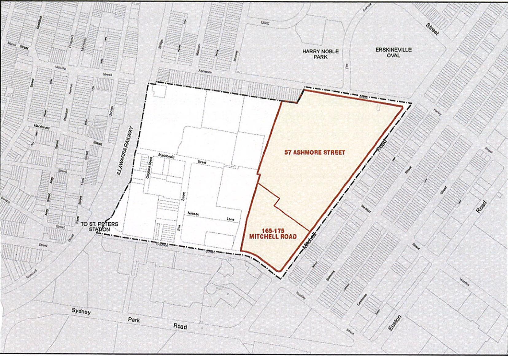
Map of Ashmore PrecinctThis is the Ashmore Precinct that the Department of Planning wants for significantly greater densityhttps://dev.redwatch.org.au/eventnotice/ashmoremap.JPG/viewhttps://dev.redwatch.org.au/eventnotice/ashmoremap.JPG/@@images/image-1200-d8de5798924a1d3f011c46933f6b3b33.jpeg
Map of Ashmore Precinct
This is the Ashmore Precinct that the Department of Planning wants for significantly greater density