Sketch Plans of Settlement Building Changes 20 July 2007
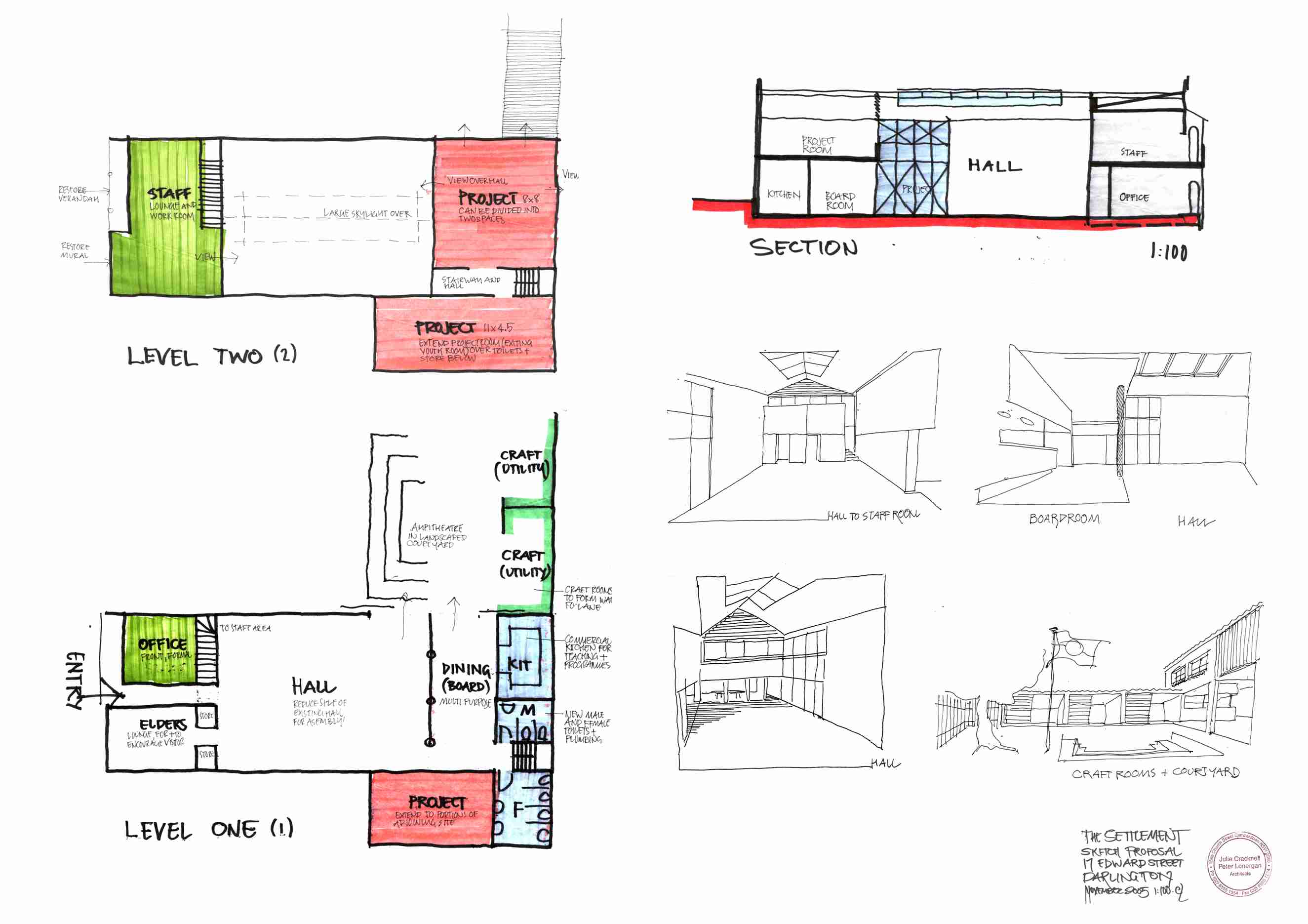
These are sketch plans showing the building changes to The Settlement in July 2007. File is 157 KB JPG.
These are sketch plans showing the building changes to The Settlement in July 2007. File is 157 KB JPG.